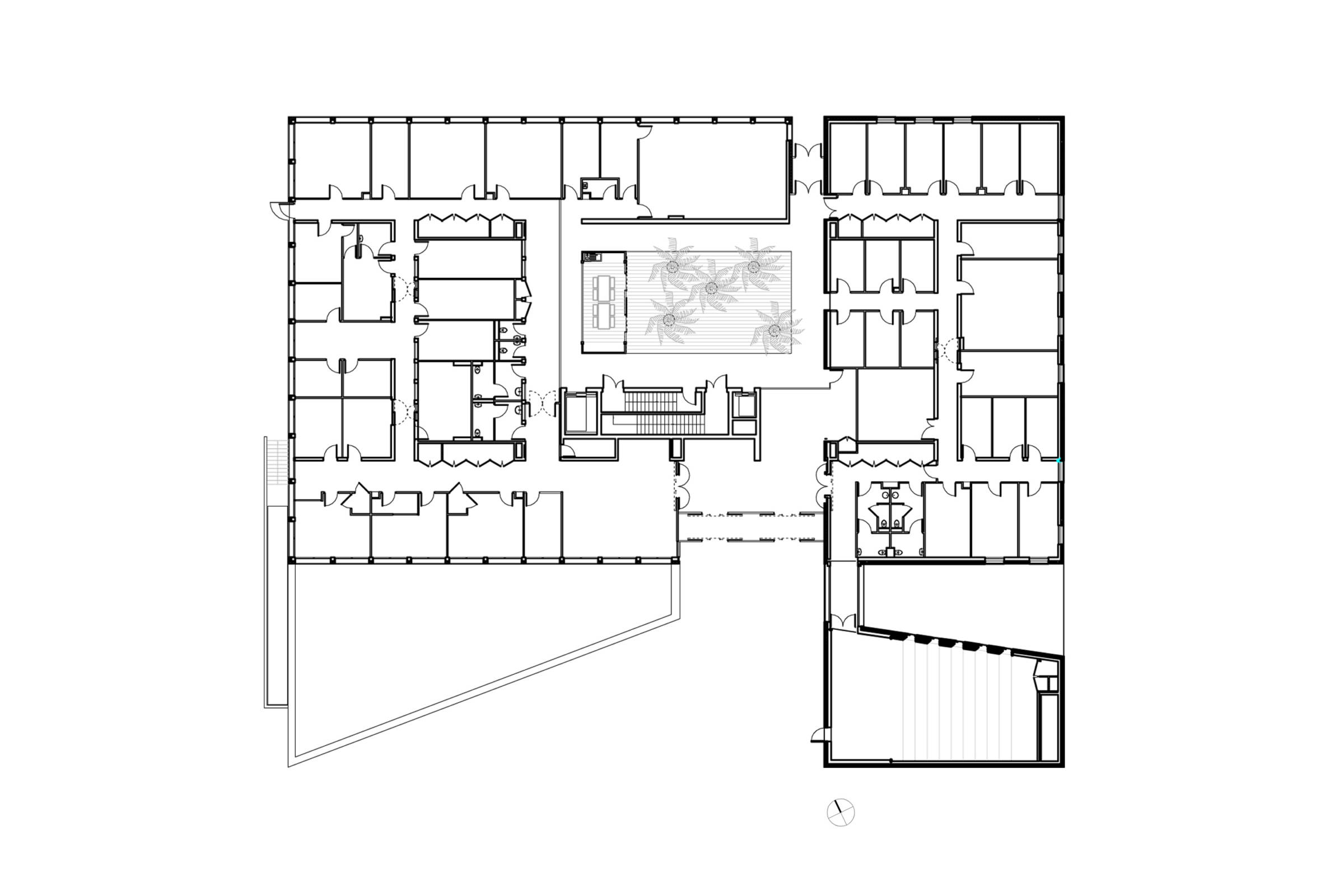
Seven levels, 12,000 sq.m. of laboratories, including an animal unit… The CRBS has opted for a very compact layout. Surrounded by a “researchers ring”, its open central atrium forms the heart of the building: it allows natural passive ventilation and highlights the life of the laboratory. Its glass roof is open to the sky and the roofs of Strasbourg, magnified by a “periscope” that reflects their image onto the ceiling. Adopting the outline of neighbouring nineteenth century city blocks and the historic Petite France district, the CRBS stands out thanks to its volumetrics and its “pixelated” facade, enlivened by colours of different shades.
Low Energy Building
Team
Director
Project leader
Hélène Bottarel
Team
Vivien Pillot, Adrien Félix-Faure, Géraldine Eynard
Quantity surveying
Alain Mollaret, Denis Chaix













