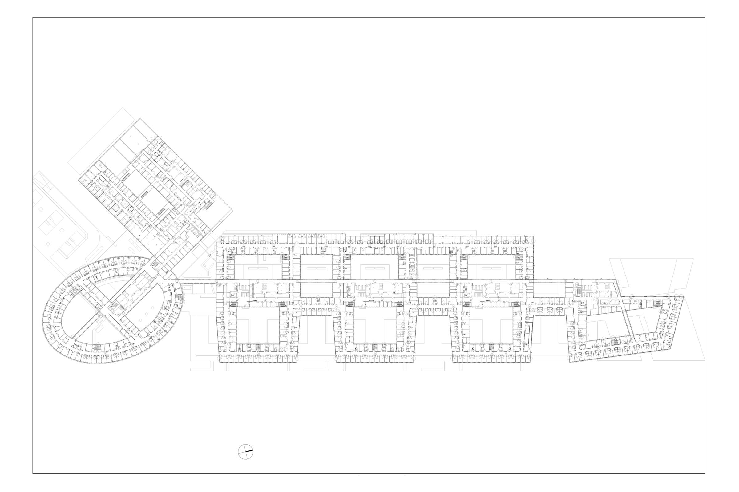
The New Hospital (NHO) is a visible landmark whose unique ellipse shape marks the southern entry point to the urban area and the La Source neighbourhood, in a high-quality landscaped setting. It boasts a compact, interesting and fragmented horizontal architecture which engages with its urban environment. It is laid out along an East-West axis comprising five major accommodation blocks: medium-stay, consultations, medicine, surgery and maternity, a layout which ensures that hospital specialities are grouped vertically under the same medical and administrative department. This efficient layout is based on four key elements: a remarkable lobby, where visitors go for information and can then disperse; an internal street connecting the blocks, dotted with patios; a single theatre and operating block; and a central, automated basement logistics platform. The first HEQ-certified hospital in France, it deploys innovative, low impact solutions, including in the design of its prefabricated wood-framed façades.
HEQ certification.
Team
Directors
Olivier Félix-Faure, Alain Eyraud, Thierry Bernardoux
Team
Études : Pierre Barbotte, Laurent Ducongé, Annick Isnard, Davide Benato, Géraldine Eynard, Juliette Chauvel, Michèle Brossier Roumegoux, Alberto Gennaro, Salvatore Carvelli, Leila Belloundja, Vincent Platel, Christine Guillas, Jean Salvi, Sabine Fontana, Vivien Pillot, Ana Vacas Mata, Florian Burnichon, Bruno Deckert, Serge Gascon, Chahinez Chekri, Alix Dinnequin, Gianni La Cognata, Alice Flavigny, Anne-Marie Morvant, Christian Hennuy, Raphaël Camacho, Irina Klopkova, Nicolas Forthoffer, Alain Galaup, Marie de Roquemaurel, Sylvain Bru, Fadel Ghennam, Denis Bouvier, Maria Ramos, Ketty Maitre, Henri Guillaud-Beauregard, Lilyan Garnier, Pascal Corsi, Holly Helfrich, Yves Tailfer, Orlando Corso, Romain Mirabeau / Chantier : Serge Cuchet, Eric Couillez, Loïc Nekmouche, Laurent Gathion, Fabien De Lapparent, Romain Obry, René Canale, Pierre Franchino, Fabienne Baret, Mathilde Bedu, Pierre Benoist, Damien Fernades-Eusebio, Albin Miralles, Julien Duchadeau / Intérieurs : Marie-Anne Steinhaus, Rosalia Damiani, Sandrine Pieck, David Naudon
Quantity surveying
Didier Deschamps, Alain Mollaret, Denis Chaix, Wieslawa Rudy, Ludovic De Saint Germain, Jacques Richaud


